Kaikōura council plans to open up land for 400 new homes

11:01 am on 20 November 2025
The Ocean Ridge sub-division set amidst the idyllic Kaikōura landscape, with the Kowhai River in the foreground.

The Ocean Ridge sub-division set amidst the idyllic Kaikōura landscape, with the Kowhai River in the foreground. Photo: Supplied/Kaikōura District Council

A proposed plan change will open up land for around 400 new houses in Kaikōura, if approved.

The Kaikōura District Council is set to notify a private plan change on Thursday to alter the resource consent for the Ocean Ridge sub-division, which would allow the development to grow to 486 sections.

Council chief executive Will Doughty said the existing consent was capped at 168 sections, increasing to 336 sections once the Green Lane access route opened.

Along with the 83 sections consented in the Vicarage Views sub-division, the private change would open up to 403 new sections, which could provide housing for around 1000 people, he said.

The Ocean Ridge sub-division could grow to 486 sections.

The Ocean Ridge sub-division could grow to 486 sections. Photo: Supplied/Kaikōura District Council

Depending on the mix of housing types, this would represent significant growth for the district's population of 4200.

''We haven't seen that level of growth over a short period historically, but we have put the building blocks in place with the spatial plan, building the infrastructure and other planning,'' Doughty said.

''We are looking to make sure we are across future growth and future direction and to manage it as best we can.

''We would like to think the growth will happen sooner rather than later, but it's got to be at a rate which is sustainable for the town and community.''

The plan change from developer Cargill Station Ltd considers flood mitigation, housing density and variations to the consent conditions on different parts of the development.

The proposed flood mitigation has considered a one-in-500 year flood event from the Kowhai River, a 30 percent increase in flow due to climate change, a 1.5 metre increase in sea level and a two metre aggradation of the river bed.

''They have taken a more than worst case scenario and it will be for [Environment Canterbury] to comment on its levels of comfort,'' Doughty said.

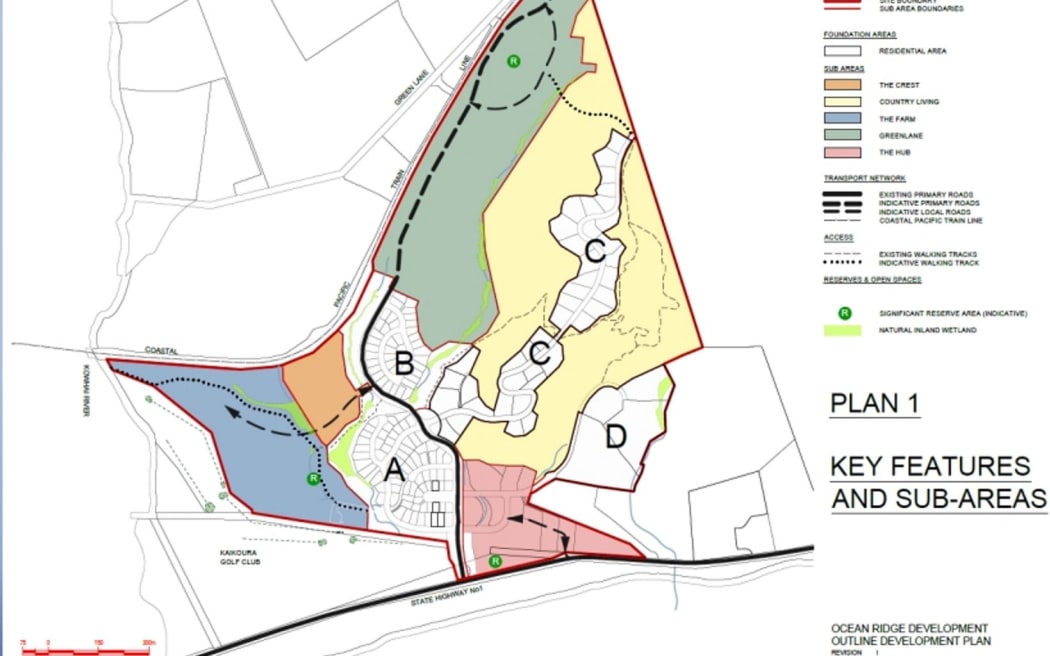
An image showing the different parts of the Ocean Ridge sub-division.

An image showing the different parts of the Ocean Ridge sub-division. Photo: Supplied/Kaikōura District Council

The council received a $7.8m grant from the government's Infrastructure Acceleration Fund (IAF) in 2022 to help fund the infrastructure to support 403 new houses, including 83 sections at Vicarage Views and the balance at Ocean Ridge.

The IAF funding was to enable more affordable and older person's housing.

The Vicarage Views development is fully consented, with infrastructure in place, and is waiting on the developer to ''push the button'' once the economy improves.

Doughty said the council planned to award a contract soon for the detailed design of the Green Lane access route.

The first round of submissions on the private plan change will close before Christmas, with submitters getting a second chance to comment when the summary of submissions is released next year.

Hearings, if required, will be held in late March/early April.

An aerial image showing the Ocean Ridge sub-division to the south of the Kaikōura township. Image: supplied by Kaikōura District Council.

An aerial image showing the Ocean Ridge sub-division to the south of the Kaikōura township. Photo: Supplied/Kaikōura District Council

Doughty said a staff report would be presented to the council, but the usual process was for the submissions to be heard by a panel led by an independent commissioner.

Other commissioners were likely to include a Te Rūnanga o Kaikōura representative and community representatives, he said.

Cargill Station Ltd owner Garry Robertson said there was ''a real buzz'' around the town.

''There is a real hype around the town and everyone believes we are going to have a great year. There is really strong demand for affordable housing, but it's hard to accommodate because of the escalating costs, but in the $1 million plus market there's some really good offerings.''

He said ''soft marketing'' for the Vicarage Views sub-division on social media earlier this year resulted in 6500 hits in just two days.

''It's very encouraging to get that many. It suggests people are looking at Kaikōura as a place to move to.''

LDR is local body journalism co-funded by RNZ and NZ On Air.

Get the RNZ app

for ad-free news and current affairs